Menu

間取り集

Home

辻堂元町A棟


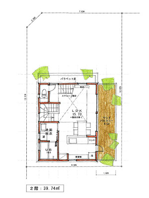
土地は広いが建物は予算配分上の理由もあり、やや小ぶりである。
サーフィンをするので、大きめな玄関収納がほしい、ロフトと日当たりのよい2階のリビングがほしい、という御希望があった。
ウッドバルコニーでさらに広がりをつくっている。

PAGE TOP