Close menu
鎌倉市 住宅設計 設計士 鎌倉山設計室
コンセプト
「2つの住宅」について
鎌倉山設計室のめざす設計とは
設計・施工実績
設計・施工実績
間取り集
間取り集
業務内容
設計業務について
住宅ができるまで
設計室スナップ集
事務所紹介
代表者紹介
事務所概要・アクセス
お問い合わせ
お問い合わせ
Menu
間取り集
Home
電話
地図
メール
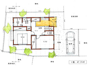
太平台F邸-2
リビングに畳のスペースがほしいとの御希望があり、2階床面よりここを少し上げ、長いボードを置くスペースを確保している。
帰宅後にすぐ体を洗えるように、洗面・浴室を玄関にさらに近づけた。
一覧に戻る
表示:
モバイル
|
パソコン